Конструирование промышленных зданий и сооружений-20% +219
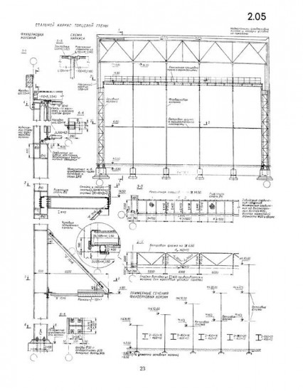
💳 Оплатить за товар можно при получении 🇰🇿 Есть бесплатная доставка по Казахстану от 1 дня 🎁 Копите бонусы с каждой покупки Книга представляет собой альбом чертежей типовых унифицированных конструкций промышленных зданий общего назначения сопутствующих им сооружений — коммуникаций и емкостей, предназначенных для перемещения и хранения различных материалов. Чертежи сборника составлены по действующим сериям утвержденных Госстроем типовых проектов и по материалам ведущих проектных и научно-исследовательских институтов. Организации — авторы отдельных проектов указаны в пояснительном тексте. |
Детальная информация
Издательство
Язык
русский
Переплет
твердый переплет
Дата выхода
2024
ISBN
978-5-9647-0347-1, 5-9647-0037-3, 978-5-9647-0037-1, 978-5-9647-0364-8
Количество страниц
168
Код товара
158295
Издательство
Архитектура-С, Россия, все товары
| Издательство «Архитектура-С» выпускает литературу по архитектуре, градостроительству, дизайну, ландшафту, реставрации, вопросам искусствоведения, а также по строительной тематике. В плане выпуска здательства значительное место занимает учебная и справочная литература, подготовленная профессорско-преподавательским составом Высшей школы России. |
Авторы
Разделы товара

















































































































































%text%